33-100 Tarnów
33-100 Tarnów
Biuro - tel. 14 639 08 96
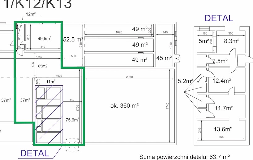
Oferujemy do wynajęcia lokale magazynowe wraz z częścią biurową o łącznej powierzchni 313m², zlokalizowane w budynku komercyjnym w popularnej dzielnicy Strusina w Tarnowie.
Najważniejsze atuty:
Bardzo dobry standard wykończenia – po generalnym remoncie w 2024r, z wymienioną instalacją elektryczną, internetową i stolarką okienną (PCV).
Funkcjonalny układ, lokal znajduje sie na poziomie "0" składa się z:
- hali magazynowo - rozładunkowej (75,6m2) z bramą wjazdową oraz z osobną toaletą,
- pomieszczeń socjalno - biurowych wraz z korytarzem
- dwóch osobnych mniejszych magazynów o powierzchni 37m2 i 50m2 wraz z komunikacja 65m2 (która może zostać wykorzystana jako część magazynu)
Indywidualna infrastruktura – najemcy mają do dyspozycji własne toalety oraz w pełni wyposażone pomieszczenie socjalne (kuchnia).
Dostęp 24/7 – pełna swoboda korzystania z lokalu o każdej porze, co daje elastyczność prowadzenia działalności.
Nowoczesny budynek – komfortowy dojazd samochodami o dużym tonażu dla pracowników i klientów.
Duży, monitorowany parking – bezproblemowe parkowanie dla Ciebie, zespołu oraz odwiedzających.
Lokal idealnie nadaje się na działalność magazynową, produkcje, siedzibę firmy, działalność usługową wymagającą spokojnej przestrzeni.
Warunki najmu:
Cena: 29,00 zł/m² netto + media,
Kaucja: wymagana.
! Istnieje możliwość wydzielenia samej części magazynowej lub magazynowo socjalnej !
Dodatkowy atut:
Możliwość wynajęcia dodatkowych powierzchni biurowych lub magazynowych (murowanych) o różnych metrażach – wszystko w tej samej lokalizacji!
Lokal gotowy do wprowadzenia od zaraz, czysty z pełną infrastrukturą techniczną.
Układ lokalu daje możliwość indywidualnej aranżacji przestrzeni według potrzeb najemcy.
Budynek objęty całodobowym monitoringiem – bezpieczeństwo najemców i klientów gwarantowane.
Budynek zlokalizowany w dobrze skomunikowanej części Tarnowa – szybki dojazd do centrum oraz głównych arterii miasta.
Oferta godna uwagi dla firm ceniących komfort, profesjonalizm i dogodną lokalizację.
Zapraszamy do kontaktu i na prezentację!